Цена на раздвижные окна ПВХ от 31 025 рублей / м2

Современные технологии остекления позволяют создавать функциональные и эстетичные решения для помещений любого типа. Например, раздвижные пластиковые окна и двери патио стали популярным выбором для балконов, лоджий, веранд и загородных домов. Такие конструкции идеально подходят для экономии пространства, особенно в узких помещениях, и позволяют использовать панорамные решения с большими створками, что невозможно с традиционными распашными системами.
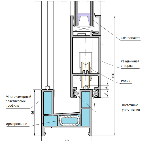
Раздвижные пластиковые окна.
Такие окна по своему принципу напоминают алюминивое раздвижное остекление балконов, но в отличие от него, в раздвижных пластиковых окнах используются многокамерные профили с установленными стеклопакетами.

Наиболее часто раздвижные окна используются при остеклении лоджий, когда необходимо получить лучшую теплоизоляцию чем при алюминиевом остеклении, но нет возможности или желания устанавливать распашные конструкции либо раздвижными окнами (вернее, уже дверями) делается выход на дачную террасу или балкон. Современные раздвижные окна пвх – это гармония комфорта и эстетики. Они открываются одним движением руки и без применения значительных усилий. Для открывания створки следует сдвинуть ее в сторону в плоскости остекления, при этом, находясь в открытом состоянии, створка не перекрывает проход и не способна ударить мебель.
Виды раздвижных систем
Существует два основных типа раздвижных систем: сдвижные и портальные. Они отличаются механизмом открывания и уровнем защиты от холода, шума и влаги.
- Сдвижные пластиковые окна
Эти конструкции напоминают алюминиевые раздвижные системы, но имеют важное отличие — они изготавливаются из многокамерных пластиковых профилей с установленными стеклопакетами. Это делает их более энергоэффективными и подходящими для зимнего использования.
Такие окна часто применяются для остекления балконов и лоджий, где важно сохранить тепло и защитить помещение от внешних воздействий. Они также отлично подходят для дачи или коттеджа, где требуется выход на террасу или в сад.
Преимущества сдвижных окон:- Легкость управления: створки открываются одним движением руки.
- Экономия пространства: створки не занимают место при открывании.
- Защита от пыли, ветра и шума благодаря качественным уплотнителям.
- Портальные системы (патио)
Портальные системы — это более сложные и функциональные конструкции. Их механизм открывания напоминает двери в междугородних автобусах: створка сначала отходит от проема, а затем сдвигается в сторону.
Такие системы идеально подходят для панорамного остекления, например, для выхода из дома на лужайку или террасу. Они обеспечивают высокий уровень тепло- и звукоизоляции, что делает их оптимальным выбором для зимних садов или веранд.
Преимущества портальных систем:- Возможность откидывания створок для проветривания.
- Легкость управления даже при большом весе створок (до 200 кг).
- Высокая герметичность и защита от холода.
Раздвижные окна пвх являются многокомпонентной конструкцией, состоящей из следующих элементов:
- профиля ПВХ;
- стеклопакета;
- отливов-слезников;
- других комплектующих элементов.
Раздвижная система окна достаточно многофункциональная и включает несколько вариантов конфигурации, которые отличаются между собой направлениями открывания створок – влево или вправо. Если окно обладает большими и нестандартными размерами, то устанавливаются встречно-раздвижные окна.

Раздвижные окна пвх способны надежно защитить дом от следующих неблагоприятных воздействий:
- шума;
- холода;
- пыли.
Но при этом необходимо помнить, что обладая неоспоримыми преимуществами в виде невысокой цены и простоты эксплуатации, за счет своей конструкции и щеточных или фетровых уплотнений такие окна не обеспечивают максимальную теплозащиту и шумоизоляцию.
Преимущества раздвижных окон ПВХ
- Экономия пространства: раздвижные системы не требуют дополнительного места для открывания, что особенно важно для небольших балконов или лоджий.
- Функциональность: такие окна можно комбинировать с москитными сетками, откидными механизмами и другими аксессуарами.
- Эстетика: современные раздвижные окна имеют стильный дизайн и могут быть выполнены в любом цвете, что позволяет гармонично вписать их в интерьер.
- Долговечность: благодаря использованию качественных материалов, таких как профили от ведущих производителей (например, Rehau), такие окна служат десятилетиями.
Дополнительные опции
При заказе раздвижных окон вы можете выбрать дополнительные опции:
- Утепление: для повышения теплоизоляции используются двухкамерные стеклопакеты и армирование профиля.
- Внешняя и внутренняя отделка: для придания окнам завершенного вида.
- Москитная сетка: защита от насекомых.
- Энергосберегающее стекло: снижение теплопотерь и экономия на отоплении.
Патио или портал.

Всех вышеперечисленных недостатков лишены портальные системы, или, как их еще называют - окна патио или параллельно-раздвижные. Принцип их открывания в корне другой и напоминает открывание дверей в междугородних автобусах - сначала створка чуть отходит от проема и лишь потом откатывается в сторону на специальной системе подвеса.
Такой тип открывания чаще применяется в раздвижных пластиковых дверях-патио, устанавливаемых для выхода из дома на лужайку или в сад. Также портальные системы можно порекомендовать при обустройстве выхода из квартиры на балкон для экономии места и сохранении бескомпромиссных параметров теплоизоляции.

Отличительной особенностью данного типа раздвижных окон и дверей является легкость управления - вес створки, который может достигать двухсот килограмм, берет на себя фурнитура. Достаточно легкого поворота ручки и все остальное сделает механика окна - откроет и откатит створку или наоборот, плотно закроет и загерметизирует проем без лишних усилий.
Еще одним преимуществом портальных систем является возможность откидывания створок как и в обычных пластиковых окнах. Этой возможностью можно пользоваться для проветривания помещений зимой или при холодной погоде.
Производство и монтаж
Все конструкции изготавливаются на современном производстве с использованием высококачественных материалов. Мы предлагаем полный цикл услуг: от замера и расчета до доставки и монтажа. Наши специалисты гарантируют точность установки и соблюдение всех технических норм.
Для удобства клиентов мы предоставляем гарантию на все виды работ и материалы, а также возможность рассрочки платежа.
Раздвижные окна патио - фото одного из наших объектов
Как заказать?
Чтобы выбрать подходящее решение для вашего дома, оставьте заявку на сайте или позвоните по телефонам: 8-495-369-54-26; 8-968-522-95-51. Наши менеджеры перезвонят в течение нескольких минут, проведут консультацию и помогут рассчитать стоимость заказа. Мы работаем по всей Московской области, включая Раменское и другие города.
Раздвижные окна ПВХ — это идеальное сочетание функциональности, эстетики и доступной цены. Доверьтесь профессионалам и создайте комфортное пространство в вашем доме!
Заказывайте раздвижные окна и двери патио сейчас и вы получите значительные скидки!
Не забывайте, что перед тем как заказать раздвижные окна, следует произвести квалифицированный замер. Правильные размеры будущего окна позволят произвести его установку таким образом, что в дальнейшем оно не изменит своих характеристик. А делая заказ окон во время акций, можно получить возможность сэкономить до 40% их стоимости!
Существенные скидки на окна пвх позволяют произвести остекление сразу во всей квартире путем установки новых оконных конструкций во всех жилых комнатах, кухне и на балконе. «Найдя» свою скидку, каждый покупатель получит превосходную оконную конструкцию с фурнитурой высочайшего качества. При этом будет оказана услуга по качественной установке окна.






